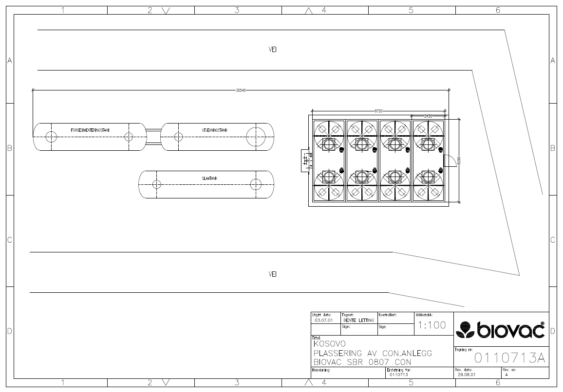
Containeranlegg i Camp Lebane - Kosovo
450 pe
I 2000 inngikk Biovac en avtale med det de norske KFOR styrkene i Kosovo om levering av et containerbasert avløpsrenseanlegg til den norske leiren «Camp Lebane».
Det containerbaserte anlegget ble prosessberegnet til ca. 450 pe. og levert i 8 stk. 20-fots containere. Mottakstank og slamlagre ble gravd ned på utsiden av containerne.
Containerne ble prefabrikkert i Norge før transport til Kosovo, monteringen tok ca. 2 uker før anlegget var klart til igangkjøring. Renseanlegget fungerte svært godt under tiden i «Camp Lebane» med gode driftsoperatører og godt og nært samarbeid med Biovac.
Etter nedleggelsen av leiren ble anlegget gitt bort til en landsby i området og er etter Biovacs opplysninger fortsatt i drift.



